 
    
Het project bezet twee percelen in een architecturaal ensemble, gelegen in een residentiële wijk in verandering. De gebouwen dateren uit 1921 en vormen tezamen een hoekgebouw in eclectische stijl, met afwisselend een laag rode bakstenen en cementageband, met een plint in blauwe hardsteen. Het geheel beslaat drie niveaus (gelijkvloers, eerste en tweede verdieping) en een kelder.
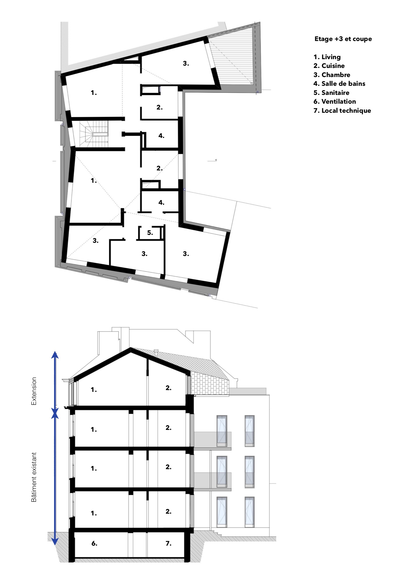
Het project omvat een grondige renovatie met een herstructurering van de appartementen, enkele uitbreidingen, en een nieuwe verdieping op het dak met een hedendaags ontwerp om kwaliteitsappartementen aan te bieden.
Het geheel bestaat uit 8 appartementen aangepast aan de sociale woningbouw, meer bepaald bestemd voor grote gezinnen. Ze biedt 4 appartementen met 1 slaapkamer, 3 appartementen met 3 slaapkamers, en 1 appartement met 4 slaapkamers.
De uitbreiding op het dak is uitgevoerd in een lichte constructie in houtskeletbouw die een extra oppervlakte van 166 m2 bezet. De renovatie van de woning staat toe om de standaard lage energiewaarde te behalen (60kWh/m2 jaar). Door een keuze te maken in technische interventies die duurzame materialen naar waarde schatten, zijn we erin geslaagd de standaard lage energiewaarde te behalen (60 kWh/m2 an), en de brand- en akoestische normen te beantwoorden. Dit werd mogelijk gemaakt door op een rationele manier de woningen te herschikken.






