 
    
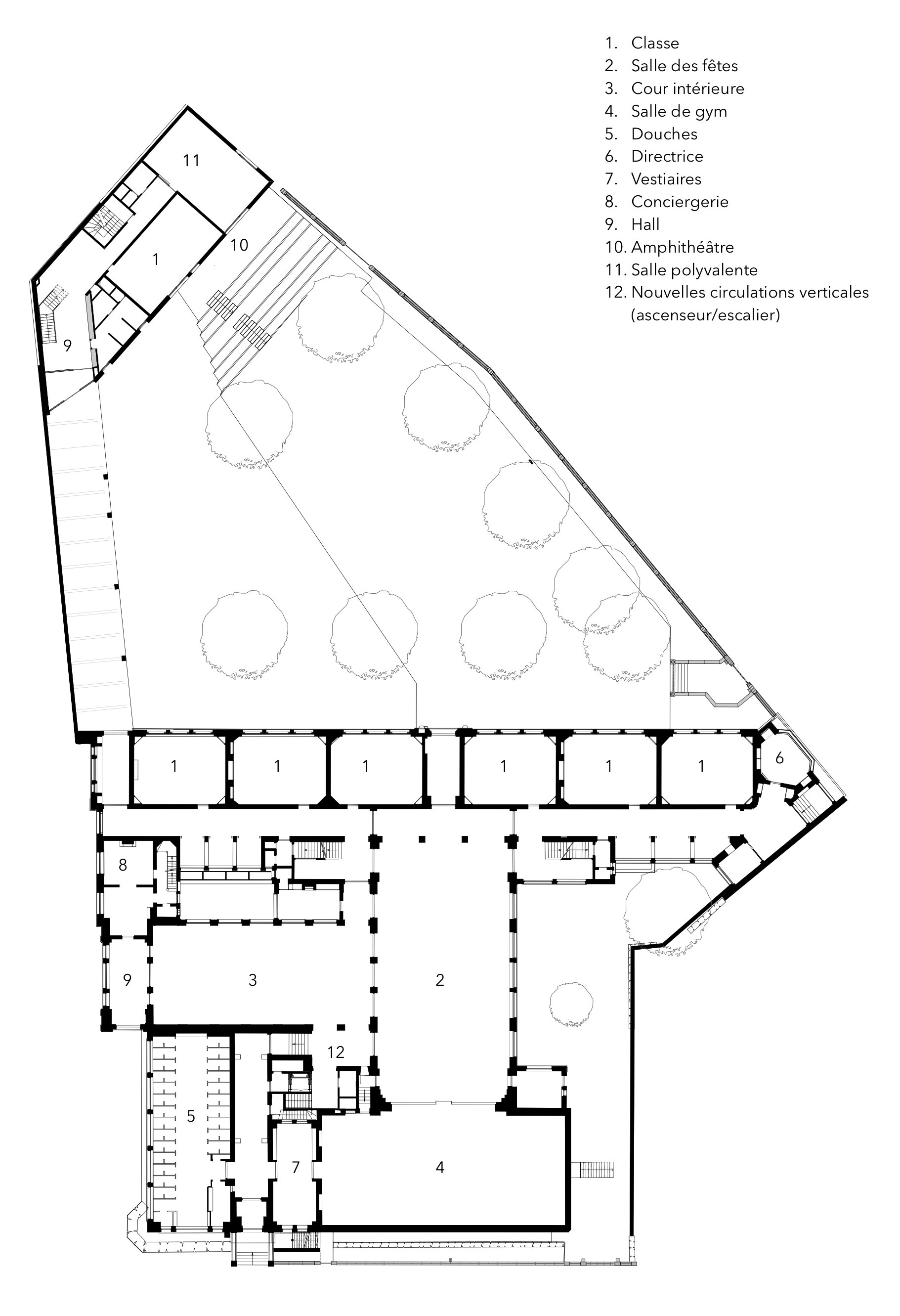
De school, ontworpen door de plaatselijke architect Henri Charles Wildenblanck, werd in 1935 gebouwd. In 2007 werd het gehele gebouw, inclusief de inrichting, op de monumentenlijst geplaatst. Het oorspronkelijke schoolgebouw is van hoge kwaliteit en werd nooit gewijzigd. Dit was het eerste grootschalige restauratieproject voor het historisch gebouw. De stalen frames, die relatief goed bewaard zijn gebleven, zijn een belangrijke getuigenis van de zoektocht naar technische uitmuntendheid die de bouw van de school leidde. Het project is gebaseerd op het principe van interne herstructurering en het benutten van het bestaande binnenpotentieel van het gebouw met behoud van de architectuur en het gebouwerfgoed. Als gevolg daarvan onderging de begane grond alleen een herstructurering van de circulatiekern. Het renovatieprogramma omvatte bovendien de uitbreiding van de kleuterschool op de site. Met het behoud in het achterhoofd werd besloten om hiervoor een nieuw gebouw te bouwen aan het einde van de binnenplaats. Klik hier om het nieuwe gebouw te bekijken.





