 
    
« een wijkcentrum, niet louter een restaurant »
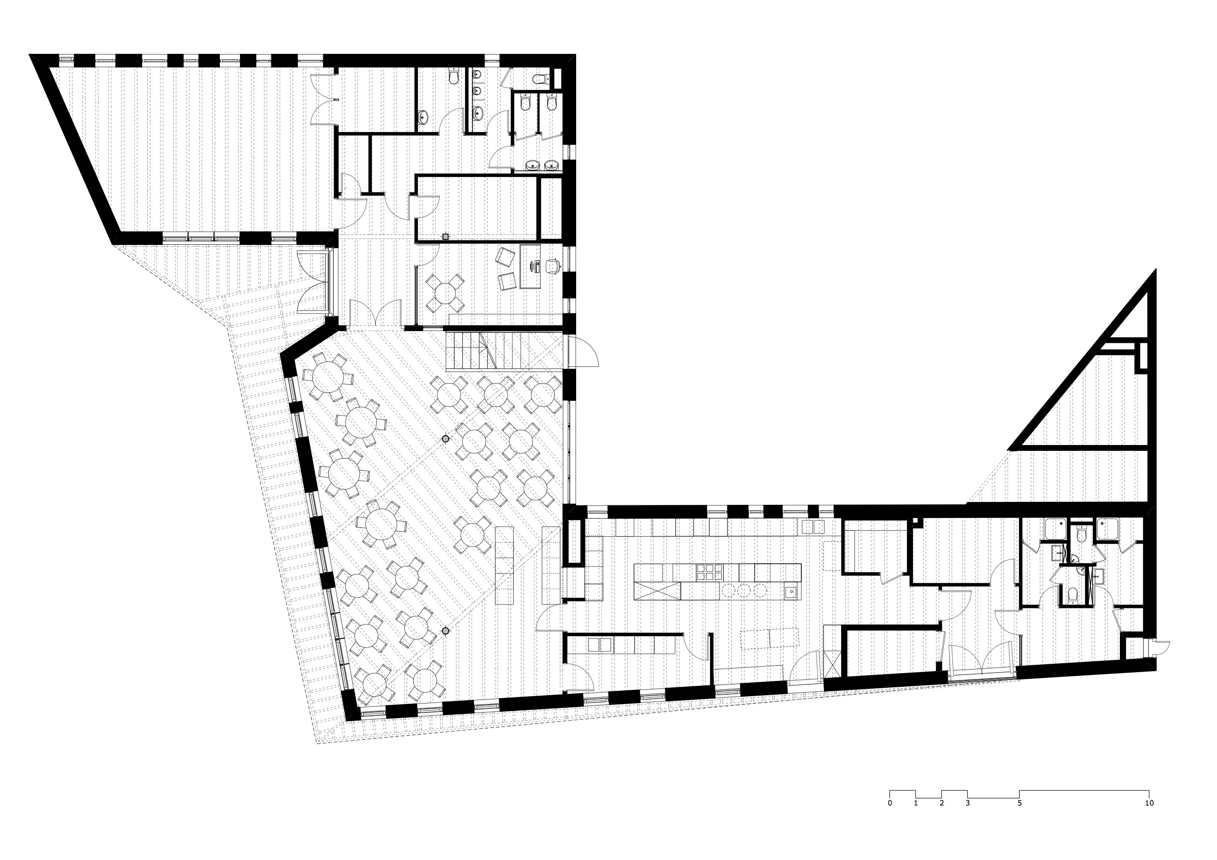
De Grondel-toren is een immens functioneel volume, ingepland op de grens van de 19e eeuwse gordel van Brussel, aan de rand met de spoorlijn. Het gebied vormt de grens met de industriele zone en verder het Pajotteland. Het project wordt ingepland in de parkingsokkel naast de bestaande stookplaats en ondergrondse parking, teneinde voldoene daglicht te vinden. Zo wordt tegelijkertijd de link gemaakt met het Grondelpark, de straat en de verhoogde inkom van de toren. Door de inplanting wordt een plein gecreëerd aan de straat die uitmond in een ruime trap. Deze geeft toegang tot de esplanade, niveau inkom appartementen en het dak van het centrum. Op het niveau van het groendak wordt een moestuin aangelegd, die andermaal de aansluiting zoekt met het naastliggend park.






