 
    
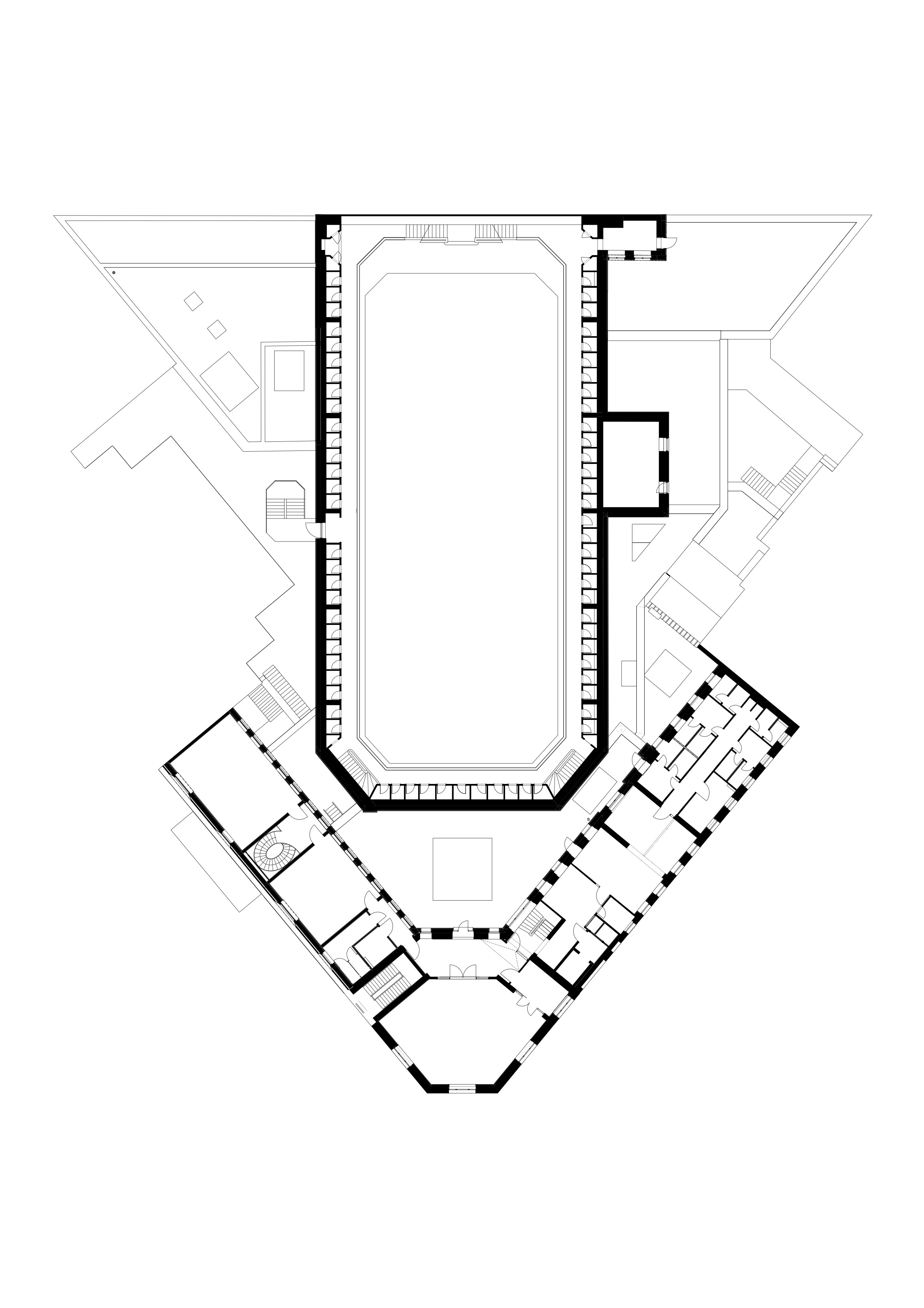
Het gemeentelijk zwembad Victor Boin is in 1905 volgens de plannen van de architecten Cooreman en Rau gebouwd. Een volledige herontwerp in Art Deco stijl tussen 1938 en 1940, uitgevoerd door de gemeentelijke inspecteur-architect Ingelbrechten, maakt het zwembad tot één van de laatste Brusselse getuigen van architecturaal erfgoed van baden en zwembaden van de tussenoorlogse periode. Het project beoogt de historische kenmerken te bewaren en de sfeer van de plek te respecteren, en tegelijkertijd het gebouw aan de huidige normen en eisen aan te passen. Het gaat erom het gebruik voor het publiek en het personeel te vergemakkelijken, de veiligheid, de toegang voor personen met beperkte mobiliteit te verbeteren maar ook het comfort en het welbevinden in ruimten bestemd voor sociale betrekkingen te bevorderen.






