 
    
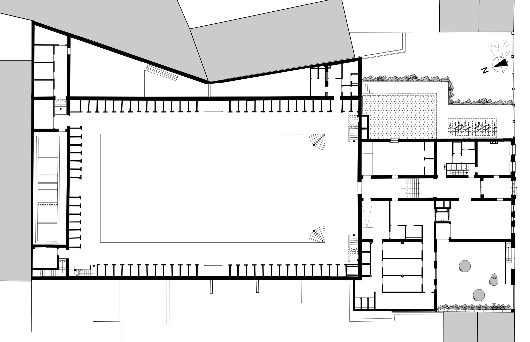
Het gemeentelijk zwembad van Elsene is de oudste zwembad van de Brussels Hoofdstedelijk Gewest en een van de oudste in Belgïe. Gebouwd in 1904 door de architecten Alexandre Cooreman en Jules Rau, is dit gebouw met een grote erfgoedwaarde, intact, met uitzondering van het frame dat in 1940 werd aangepast. Het hele gebouw is in 2007 beschermd. De hoofdtoegang van het gebouw vanaf de zwemkunststraat, de centrale gang, het zwembakken en de cabines rond het zwembad worden in overeenstemming met de oorspronkelijke situatie hersteld. Een uitbreiding werd in de zijtuin gebouwd om nieuwe kleedkamers voor groepen onder te brengen en een meer functionele inkom te maken. De nieuwe ingang en de lobby bieden een vlotte toegang voor groepen en mensen met beperkte mobiliteit.




