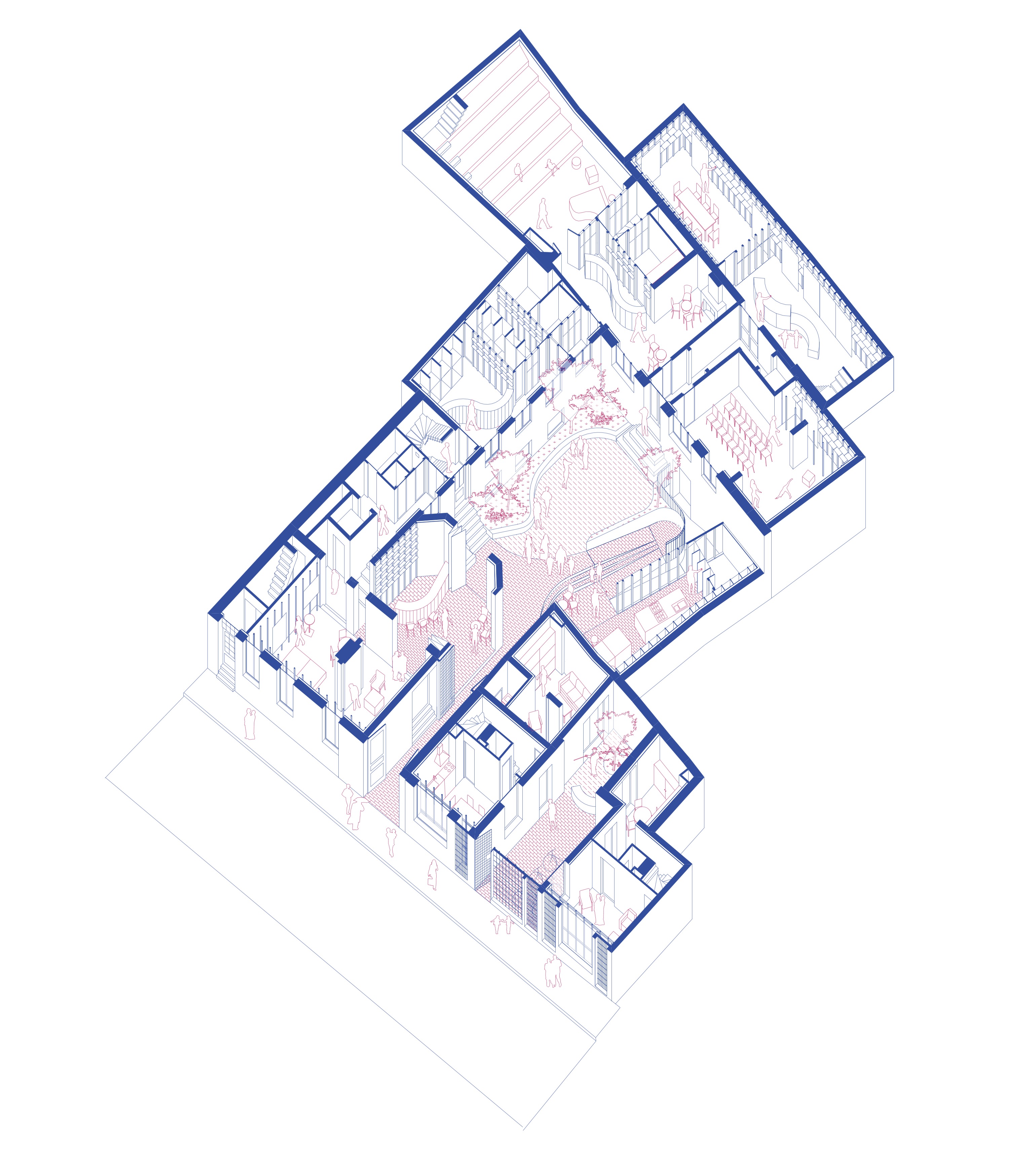
Bruxelles, ville ouverte et multiculturelle, reconnaît légalement les droits LGBTQIA+, mais des discriminations persistent au quotidien. La création de safe spaces est donc cruciale pour le bien-être de cette communauté. Ce projet vise à incarner une ville plus inclusive avec un nouveau centre communautaire, situé symboliquement près de la Grand-Place et de la rue du Marché au Charbon.







